| 物件番号 | 0000671925 |
| 物件所在地 | 京都市中京区新烏丸通二条上ル橘柳町158-1 |
| 交通 | 地下鉄東西線/京都市役所前/徒歩6分 |
| 価格 | 14,000万円 |
| 面積計測方式 | 公簿 |
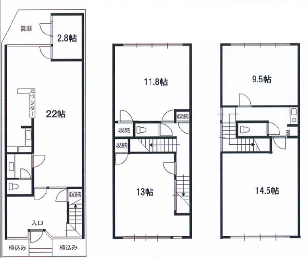
| 土地面積 | 78.24㎡ |
| 建物面積 | 116.49㎡ |
| 地目 | 宅地 |
| 用途地域 | 商業地域 |
| 建ぺい率/容積率 | 80%/400% |
| 引渡時期 | 相談 |
| 現況 | 空家 |
| 建物構造 | RC造 |
| 階数 | 3階建て |
| 間取り | 店舗+4室 |
| 駐車場 | 無 |
| 築年月 | 昭和42年12月 |
| 小学校区 | |
| 中学校区 | |
| 取引態様 | 仲介 |
| 物件登録日 | 2026-02-05 |
| 設備 | 関西電力/都市ガス/公共上下水道 |
| 備考 | 商業地域/自社ビル・事務所、テナント向き/河原町二条西側/京都市役所徒歩5分 |
| 制限 | 売主の契約不適合責任及設備品等の修理義務免責 ・15m 第4種高度地区・準防火地域・旧市街地型美観地区・近景デザイン保全区域(15-1), (47), 遠景デザイン保全区域(11), (49) ・屋外広告物第4 種地域 職住共存特別用途地区・都心部駐車場整備地区・都市機能誘導区域・居住誘導区域・京町家条例に基づく指定地区・既成都市区域 宅地造成等工事規制区域他 |
| 最終更新 | 2026-02-05 |
物件一覧










